Noticias relacionadas

Surten a licitació les obres de construcció del futur Centre Bit d’Eivissa, a sa Coma

Surten a licitació les obres de construcció del futur Centre Bit d’Eivissa, a sa Coma

La Plataforma de Contractació del Sector Públic (PLACE) ha publicat la licitació de les obres del projecte bàsic i execució de reforma i condicionament de la planta pis del pavelló 101 per a ús administratiu de pública concurrència, és a dir, el futur Centre Bit a Eivissa. Encara que els licitadors poden fer ofertes més econòmiques, el preu base és de 949.529,30 euros als que s’ha d’afegir l’IVA, resultant en total 1.148.930,46 euros que aportarà íntegrament el Govern de les Illes Balears a través de la Fundació Balear d’Innovació i Teconologia, en base al conveni signat entre el president Vicent Marí i el vicepresident balear Antoni Costa en desembre de 2023.

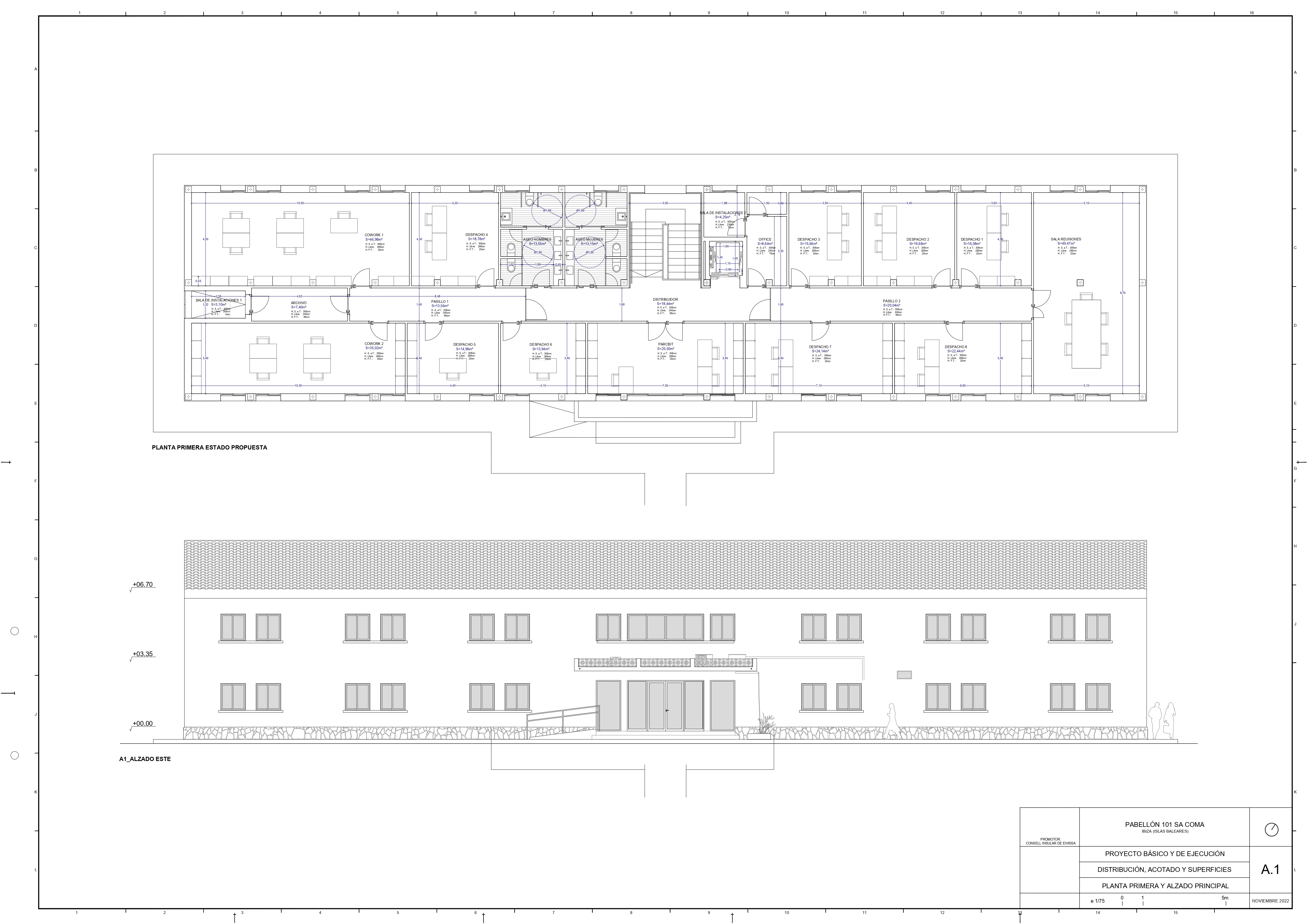
Aquesta és la passa definitiva per adequar les instal•lacions del Centre BIT que es situarà en la primera planta de l'antic pavelló militar 101 de Sa Coma, de més de 400 metres quadrats de superfície. En aquest sentit, el dia de la firma del conveni, el vicepresident Antoni Costa destacà que “l'illa d'Eivissa és l'única que encara no compta amb un Centre BIT”, una situació que es revertirà durant aquest any 2024. Costa també anuncià que “després de realitzar aquesta primera fase es treballarà en el desenvolupament d’un nou Parc que superarà els 4.000 metres quadrats”.

Les ofertes es poden presentar a través de forma electrònica a través del PLACE mitjançant el procediment obert simplificat fins el 12 de març a les 14 hores.